Towne Place Models and Floorplans
Towne Place is a Wellington FL townhome community with three models ranging from approximately 1,284 to 1,547 air-conditioned square feet. Use the chart below to compare layouts, then click “View” to jump to each model image on this page.
Towne Place Floorplans at a Glance
| Model | Beds | Baths | Garage | Levels | AC Sq Ft | Jump |
|---|---|---|---|---|---|---|
| Astor | 2 | 2.5 | 1 car | Two-story | 1,284 | View |
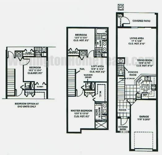
| Brookfield | 2 + loft (optional 3rd on end units) | 2.5 | 1 car | Two-story | 1,431 | View |
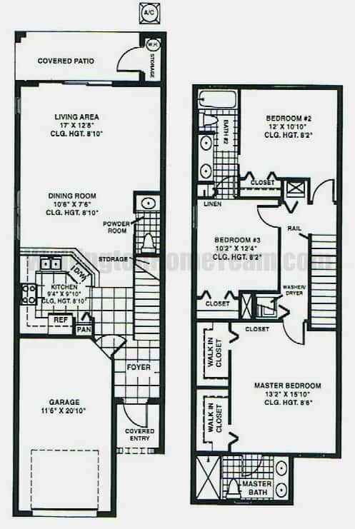
| Chelsea | 3 | 2.5 | 1 car | Two-story | 1,547 | View |
Astor Model

Brookfield Model

Chelsea Model

About Towne Place
For community details, photos, and current listings, visit the Towne Place page or browse Towne Place townhomes for sale.
Questions about Towne Place?
Tell me what you are looking for below, and I will follow up with options that match.
WellingtonHomeTeam.com
Last updated

